Banner publicitario de PCBWay

Caja AB36 Cerwin Vega

compàñeros cordial saludos a todos, serian tan amables de colaborarme con el planito de alguna caja para bajos via rapida, tengo un amplificador de 600w aprox. y hasta donde entiendo este tipo de caja no exigen mucho al amplificador.
 
Tengo un parlante mte 18tbx120 quisiera saber si se lo puedo colocar al cajón ab36 incluyendo las famosas gafas o 8
 
amigo esta es la forma que lleva el agujero espero les sirva a todos...

Aqui te dejo la forma del agujero

buenas noches pana pero que medidas lleva ese agujero osea el espacio que que queda



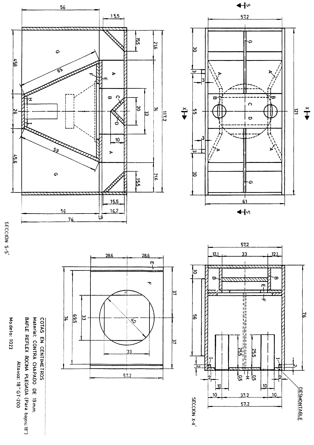
Amigos espero que me ayuden con este tema, como hago para sacar las medidas de unas cajas cerwin vega ab 36 pero para parlante de 12 , osea como calculo para reducirlas
 
Última edición:
buenas noches pana pero que medidas lleva ese agujero osea el espacio que que queda



Amigos espero que me ayuden con este tema, como hago para sacar las medidas de unas cajas cerwin vega ab 36 pero para parlante de 12 , osea como calculo para reducirlas

compa haga una regla de 3 con las medidas de las de 18 pulgadas, o sea si la de 18 tiene 90 de largo (ejemplo), pones 15 x 90 / 18 = 75 cm. y asi con todas las demas, espero q entiendas mano.

saludos



compàñeros cordial saludos a todos, serian tan amables de colaborarme con el planito de alguna caja para bajos via rapida, tengo un amplificador de 600w aprox. y hasta donde entiendo este tipo de caja no exigen mucho al amplificador.

saludos para usted tambien compa, mire hay un modelo muy bueno se lo recomiendo con toda confianza, coloque en google turbosound tsw118, ese es el nombre de la caja para bajos via rapida, yo tengo unos y le digo q no m han dejado mal para nada, te colocaria una imagen pero soy nuevo y el foro y n m permite colocarla.
 
Última edición:
Hola foreros muy buena las cajas CERWIN VEGA, me voy a armar un par si dios quiere..:);)

preguntas...

bueno ami me enseñaron asi Ejemplo, el parlante tira una 60% de sonido sale por el cono y otra el otro 40% por el lado del iman,, ahora la parte esa que queda serrada, la del iman, muere la ay ??? por que no sale ese 40 %..??
ay subí una foto marcada con rojo..

saludos colegas del sonido..!!!
 

Adjuntos

  • 01.jpg
    01.jpg
    9.9 KB · Visitas: 156
hola foreros comparto un vídeo que vi en Internet del sonido cerwin vegas muy buena calidad sonora avía sido y buenos golpes, también se ve ay un sistema de sonido array




saludos y disfruten :):)(y)
 
Amigo edwindj como esta, mire me estraña tu pregunta porque en Barranquilla segun hacen estos bajos, segun con las medidas que son osea para 15", para mi esta erradas porque?, porque cuando saque los calculos me dio medidas que cuando compre la tapa de aluminio me quedo bailando je je je je je je je je .5 de lado y lado.

Miercoles, las medidas de las tapas de lado y lado es de 76.2 cm yo respete los .2 porque me parecio importante

Amigo edwin, mira te comento que te estoy dando las medidas de las tapas de los lados. Con respecto a la tapa de aluminio, te digo algo cuando termine el bajo; tuve que cortarle 4 dedos y ponerle de lado y lado unos palitos de .5 cms porque me quedo bailando. ¿Me entiendes? Alguna cosa me escribes.

Bueno aqui estan las fotos de mis bajos Cerwin Vega 15", edwin si vez el bajo que tiene la tapa puesta de aluminio bueno esa es la que tuve que cortarla 4 dedos, y a los lados me toco ponerle a las cajas un palito de .5 cm, es por eso que digo que las medidas que hay por con esas tapas estan erradas pero aja.

atte
iavega
Cartagena - Bolivar




buenas noches amigo que medidas utilizaste para esta caja ?
 
Amigo ADGASA2005 te comento que las medidas las tengo en otro pc y se me daño prometo cuando lo arregle publico las medidas que para mi son las mas precisas, y en cuanto a corte circular que tiene donde va el parlante les digo que este adaptador es el que le da el sabor a esta caja, pero eso si el parlante tiene que ser de un bien vatiaje ya que si no, no va a dar el resultado deseado por experiencia lo digo y ha un buen amplificador (Planta)

att
Ialvega

buenas noches amigo que medidas utilizaste para esta caja ?
 
No me parece bien hacer una caja así para un 15" a menos que sea por mero ocio nunca escuche una que suene decentemente, ya que ni la casa comercial las hizo. Lo lógico sería hacer como 4 para lograr simular el golpe de un solo 18" pero sería interesante hacer pruebas y mi parecer es que 15" no es suficiente para crear una buena onda sub-sónica por debajo de los 60hz en un litraje tan bajo con eficiencia hay que saber hacer el laberinto con algún tipo de programa pero da lastima perder tiempo y dinero en tal experimento. Como final sería conveniente usar un buen SUB que por lo general es muy costoso y luego una amplificación de alta gamma. Saludos espero les ayude mi intervención.
 
esta sera la mejor respuestas a todas sus dudas



Hola foreros muy buena las cajas CERWIN VEGA, me voy a armar un par si dios quiere..:);)

preguntas...

bueno ami me enseñaron asi Ejemplo, el parlante tira una 60% de sonido sale por el cono y otra el otro 40% por el lado del iman,, ahora la parte esa que queda serrada, la del iman, muere la ay ??? por que no sale ese 40 %..??
ay subí una foto marcada con rojo..

saludos colegas del sonido..!!!

:eek: deja de hacete preguntas este es uno de los mejores o tal vez el mejor bajo del mundo con la respuesta que brinda no necesita un porcentaje
 

Adjuntos

  • 10.jpg
    10.jpg
    48.2 KB · Visitas: 174
Última edición:
aompañeros cordial saludos a todos, disculpen la molestia de casualidad alguno de ustedes saben donde puedo conseguir el plano de las cajas tipo cabaret. o no se si tendra otro nombre, pero si alguno de ustedes tienen el plano o alguna pagina donde los puedo conseguir se los agradeceria.
 

Adjuntos

  • Cajones-Cabaret-de-15-pulgadas-20141117211249.jpg
    Cajones-Cabaret-de-15-pulgadas-20141117211249.jpg
    53.1 KB · Visitas: 101
compañeros disculpen la molestia pero es que no he logrado conseguir planos de estas cajas, por otra parte encontre que tambien reciben el nombre de cajas keeler pero aun asi no he concretado nada, si de casualidad alguno de ustedes tiene informacion de estas cajas se lo agradeceria de corazon que las compartieran.
 
compañeros disculpen la molestia pero es que no he logrado conseguir planos de estas cajas, por otra parte encontre que tambien reciben el nombre de cajas keeler pero aun asi no he concretado nada, si de casualidad alguno de ustedes tiene informacion de estas cajas se lo agradeceria de corazon que las compartieran.


Hola buen día conozco muy bien estas cajas, son la JBL 4818 y efectivamente resiven el nombre de JBL Keeler y en Venezuela las llaman Cabaret.

http://hornplans.free.fr/4818.html

wpf77fb138.jpg


beyma-WBin.gif



MK.
 
compañero y que tal el rendimiento de esas cajas con respecto al spl, son mejores que las de la foto, esas medidas son para parlante 18 como haria para trabajarlas con parlantes 15 pulgadas, gracias por su colaboración compañero.
 

Adjuntos

  • images.jpg
    images.jpg
    8.1 KB · Visitas: 89
Última edición:
Hola buen día la primera imagen como veras esta en pulgadas, la segunda esta en cm aqui te dejo la JBL en ambas medidas, con sus características y comportamiento, el Sound Pressure Level es excelente no hay como una JBL.

Este esta para 18" para 15" te tocaria buscar alguna caja que se adapte más a tu Subwoofer, no es nada fácil diseñar de 0 estas cajas.

JBL: https://www.google.de/url?sa=t&source=web&rct=j&url=http://www.ratejna.info/DATA/JBL/4818/4818.pdf&ved=0ahUKEwjb0Pv-hY_LAhUBdR4KHWkODD0QFggiMAE&usg=AFQjCNHufPOHV3wyhRcaBXMEqJwu20q8Jg

Comparto mis cajas favoritas: http://wizardaudio.hu/hasznos.php

MK.
 
Última edición:
Muy buenas noches amigos, quiero hacerles una consulta y es de la conexión de los parlantes en los cerwin vegas. ¿ al parlante se lee invierten las conexiones ? en ves de que el cono tire hacia afuera entonces lo hace es hacia dentro, esto es verdad o mentira, gracias
 
Muy buenas noches amigos, quiero hacerles una consulta y es de la conexión de los parlantes en los cerwin vegas. ¿ al parlante se lee invierten las conexiones ? en ves de que el cono tire hacia afuera entonces lo hace es hacia dentro, esto es verdad o mentira, gracias

Al parlante se le aplica tensión "Alterna", el cono entra y sale siguiendo la excursión de la señal de audio.

Invertir "La Fase" solo se hace relevante en relación a otros gabinetes, si trabaja autónomo NO afecta.
 
Última edición:
A ok amigo Fogo muchas gracias, si es correcto como dice la señal que entra es alterna, pero como los parlantes tienen una polaridad creía que eso daría algún tipo de refuerzo en ellos puesto que en algunas partes lo he visto de esa manera y me llamo mucho la atención.
 
hola compañeros mucho gusto soy deivis y soy nuevo aqui viendo lo interesante del tema le adjunto y les quiero compartir este proyecto y lo tanto que me gusta este tipo de cabina tengos un par de 18 tbx 100 b&C
 

Adjuntos

  • AB36C DEIVI AUDIO.rar
    3.6 MB · Visitas: 209
  • IMG_20170730_155722.jpg
    IMG_20170730_155722.jpg
    50.2 KB · Visitas: 76
Atrás
Arriba